Arquitectura

Nº 81 – Diseño edificio de viviendas

[Espacio Coliving, Madrid]

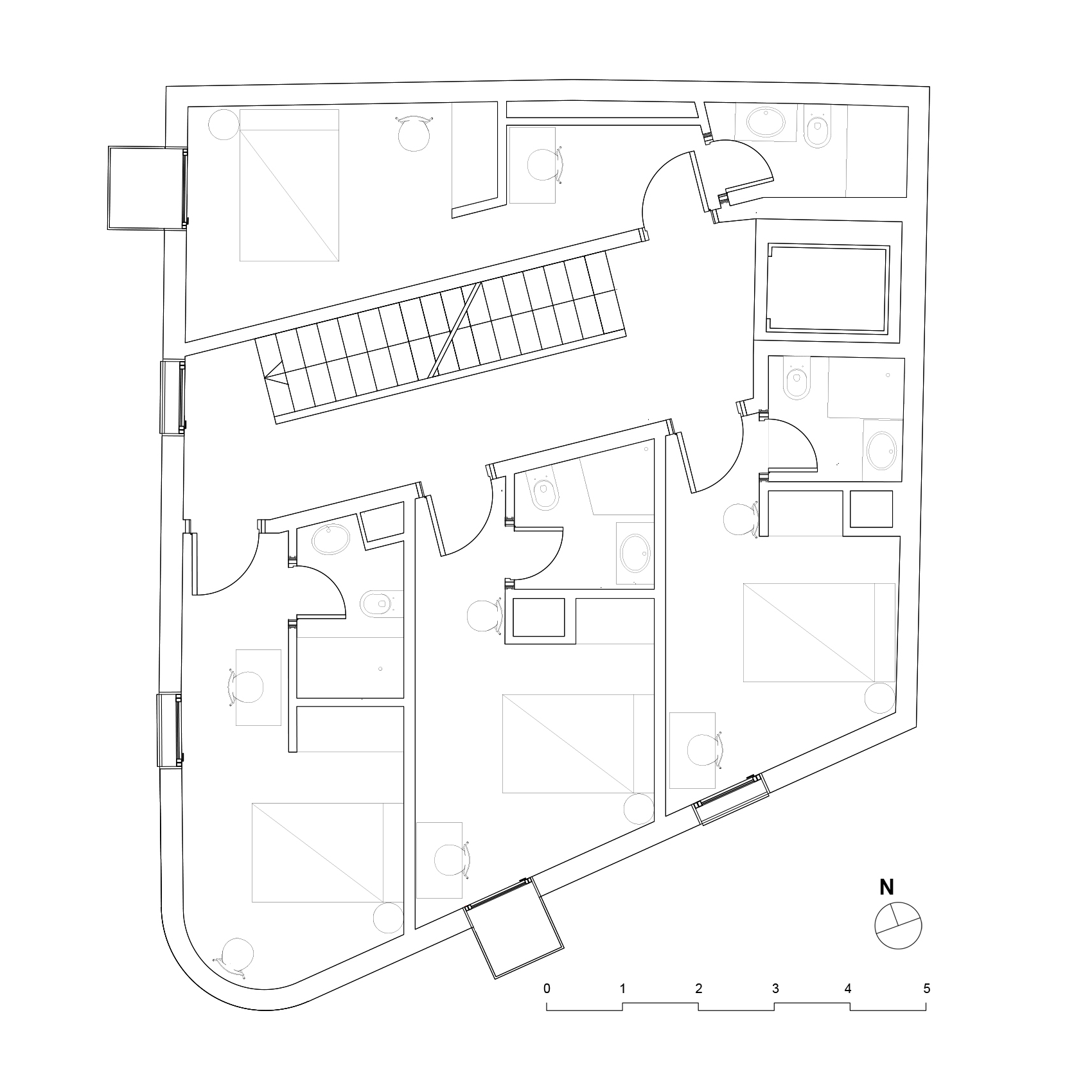
Este coliving de 11 habitaciones se concibe como un volumen compacto y reconocible, con una imagen contemporánea y atemporal. La fachada de ladrillo claro, los huecos profundos y los balcones individuales aportan una presencia urbana sobria y doméstica, alejándose del modelo de residencia impersonal. Es una arquitectura pensada para envejecer bien, con bajo coste de mantenimiento e integración de espacios vegetales. Cada habitación dispone de balcón exterior, garantizando iluminación natural y ventilación directa. Todas incorporan baño completo para asegurar privacidad total, así como una zona de estudio y trabajo integrada, adaptada a las dinámicas actuales de teletrabajo y estudio. Las zonas comunes se conciben como auténticos espacios habitables. Cocina comunitaria, áreas de estar y espacios flexibles se organizan sin pasillos innecesarios, optimizando la superficie útil. Estos espacios se prolongan hacia una amplia terraza comunitaria en cubierta, transitable y ajardinada, pensada para descanso, trabajo informal y socialización.

Año:
2026
Lugar:
Madrid
Superficie:
500 m2
Tipología:
Edificio de viviendas (Coliving)
Descripción:
Obra nueva
Cliente:
Privado
Tipo:
Encargo
Presupuesto:
1.000.000€

[01]

Galería

[02]

Planos y secciones