Arquitectura

Nº 76 – Rehabilitación integral

[Vivienda unifamiliar, Madrid]

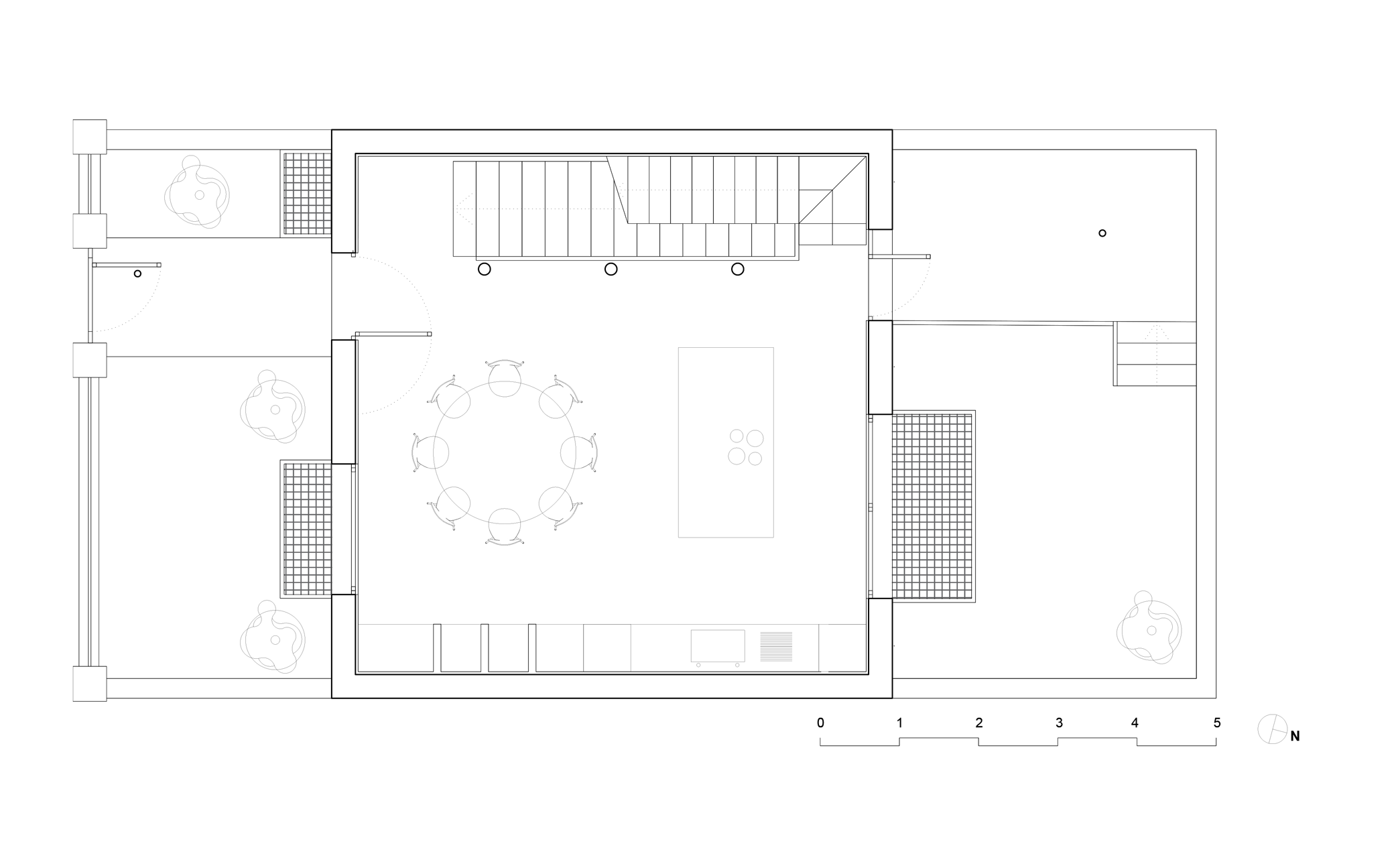
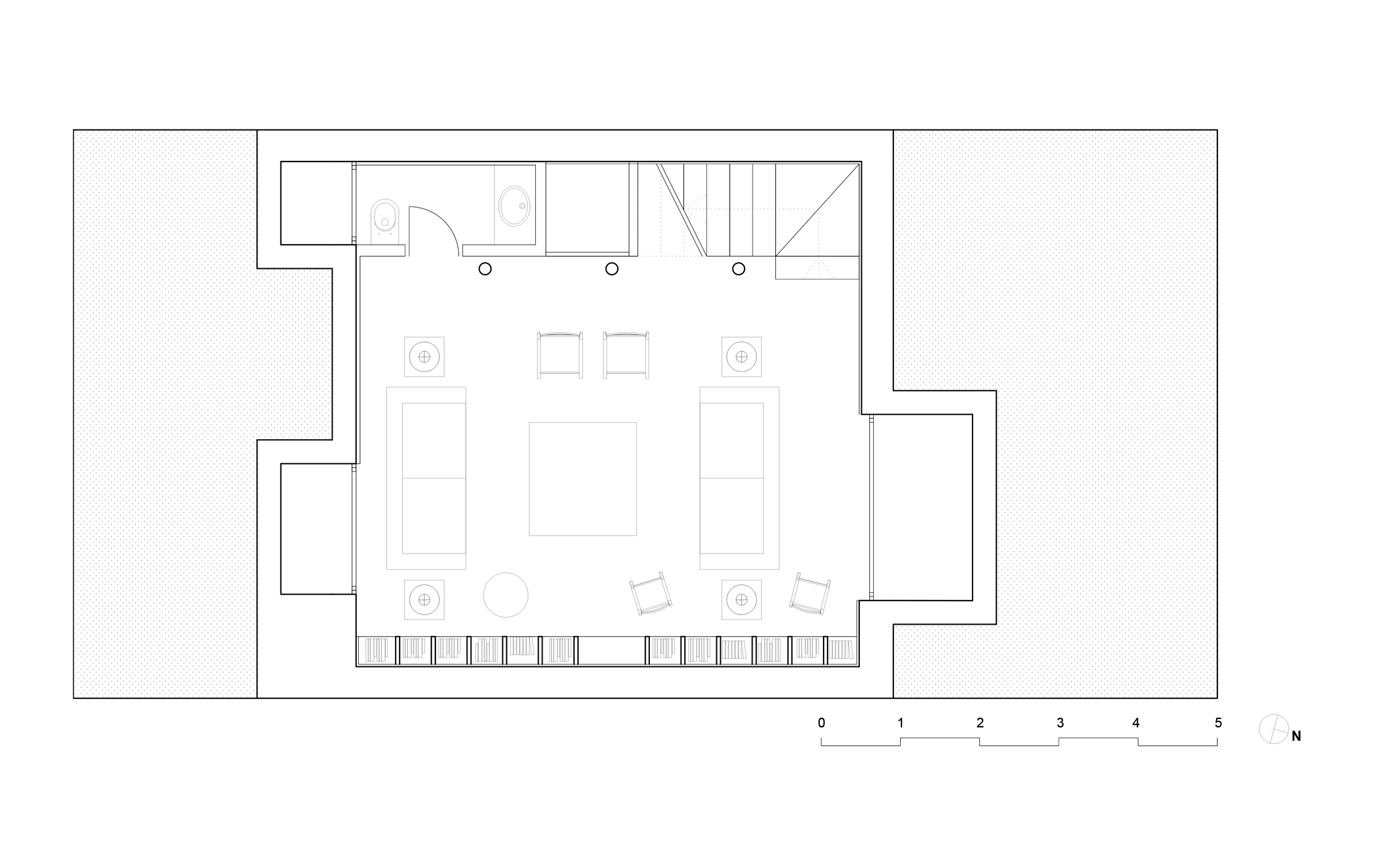
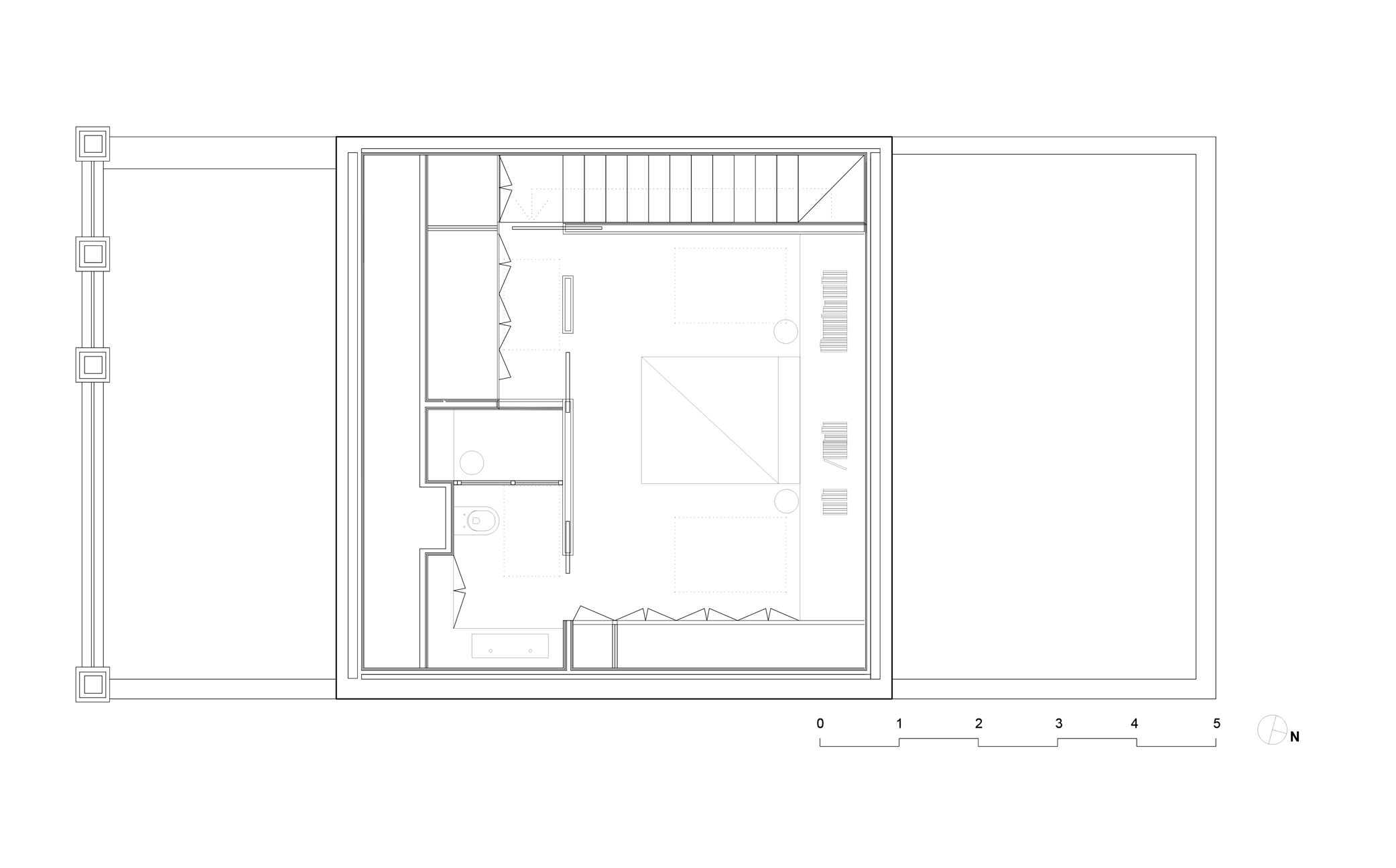
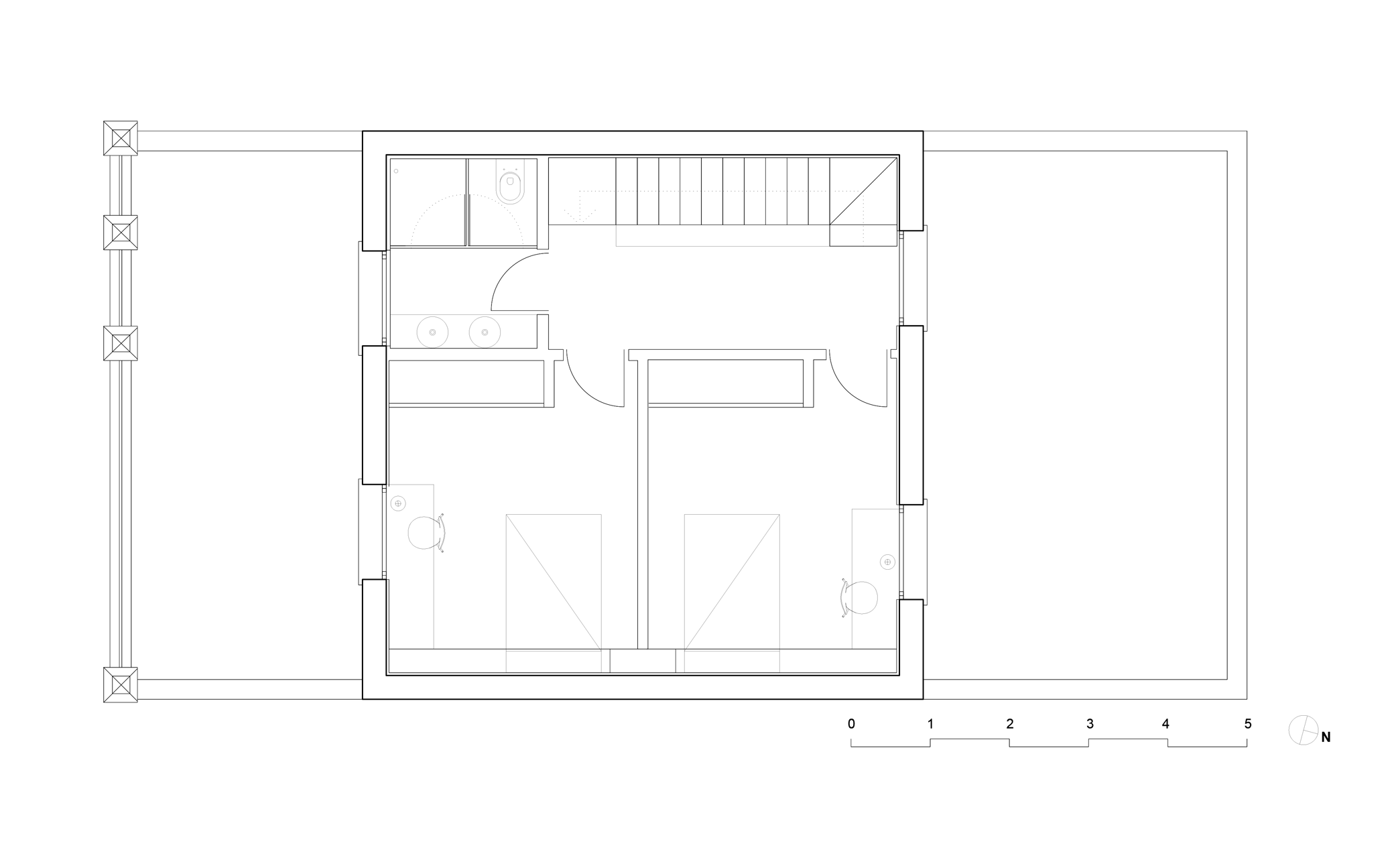
El proyecto consiste en la rehabilitación integral de una vivienda protegida en una colonia histórica de Madrid. La intervención transforma una vivienda excesivamente compartimentada en un espacio continuo y fluido, organizado mediante estancias amplias y espacios intersticiales que diluyen la noción tradicional de pasillo. La nueva distribución se desarrolla en dos plantas, donde los recorridos se convierten en espacios habitables y el salón-comedor actúa como pieza central del conjunto. La rehabilitación apuesta por una atmósfera cálida y luminosa, apoyada en el uso de tonos suaves, la presencia protagonista de la madera y una cuidada entrada de luz natural. La vivienda se concibe también como soporte expositivo. Una parte de la colección de arte de los propietarios se integra de forma precisa en la arquitectura, situando determinadas obras en puntos estratégicos del recorrido para reforzar la relación entre espacio doméstico, arte y experiencia cotidiana.

Año:
2025
Lugar:
Madrid
Superficie:
250 m2
Tipología:
Vivienda unifamiliar adosada
Descripción:
Obra nueva
Cliente:
Privado
Tipo:
Encargo
Presupuesto:
500.000€

[01]

Galería

[02]

Planos y secciones