Arquitectura

Nº 65 – Proyección edificio

[Edificio de viviendas, Madrid]

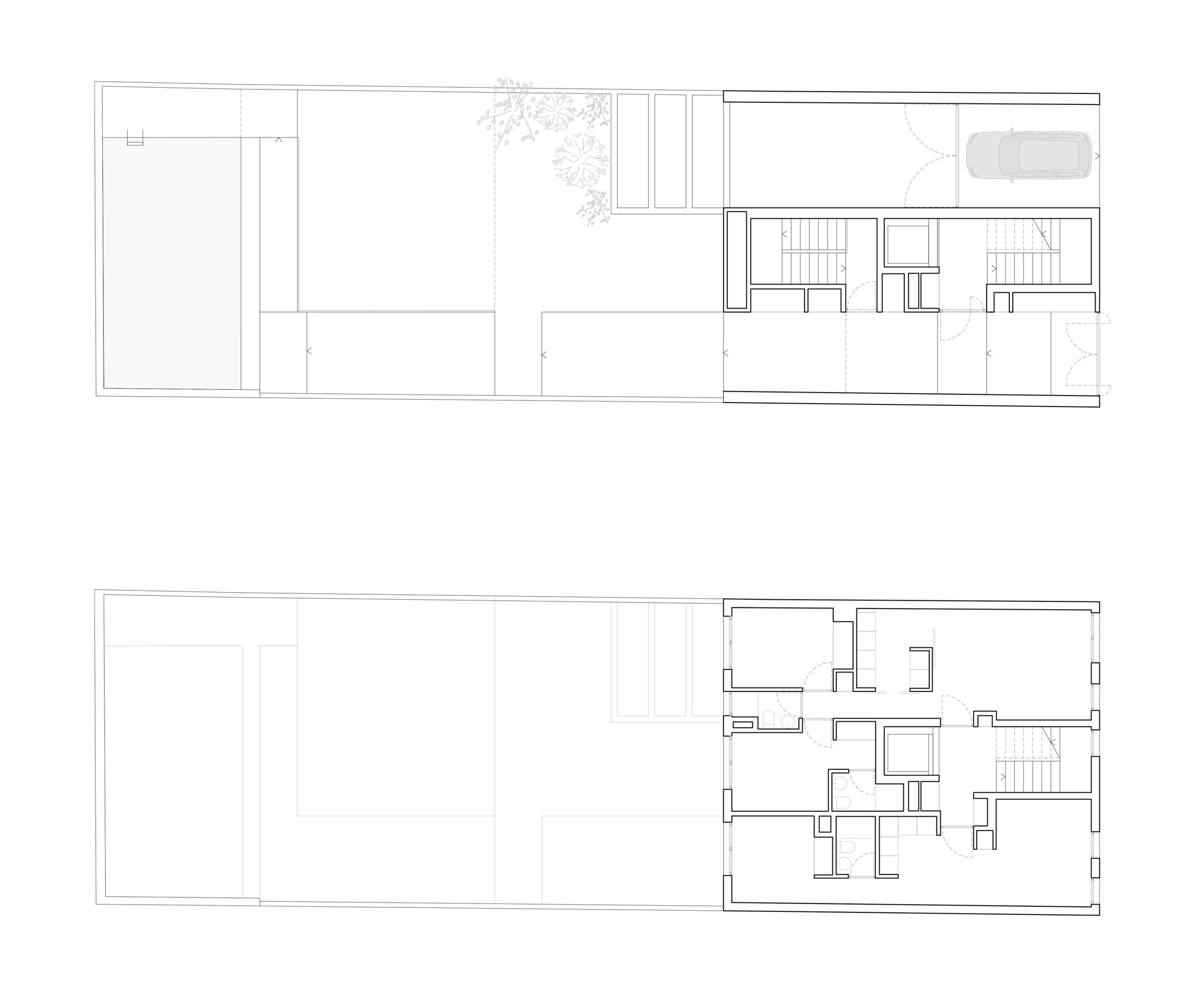
El encargo era la proyección edificio de viviendas dedicado a jóvenes en un parcela entre medianeras en el barrio madrileño de Carabanchel. Con una fachada estrecha, nuestra intención era crear una piel continua con ventanas del mismo tamaño del suelo al techo en las estancias principales y en el núcleo de las escaleras. En el ático, el torreón que toma la escalera, se curva para transformarse en cubierta. La entrada al edificio se produce por uso portal con el mismo pavimento adoquinado que tiene la calle creando un efecto de continuidad en el paseo hacia los jardines interiores y la psicina. El resultado es edificio de viviendas diferente, reconocible en el entorno y donde prima la iluminación, la ventilación y las vistas.

Año:
2020
Lugar:
Madrid
Superficie:
900m2
Tipología:
Edificio residencial
Descripción:
Obra nueva
Cliente:
Zedant S.L
Tipo:
Encargo
Presupuesto:
990.000 €

[01]

Galería

[02]

Planos y secciones